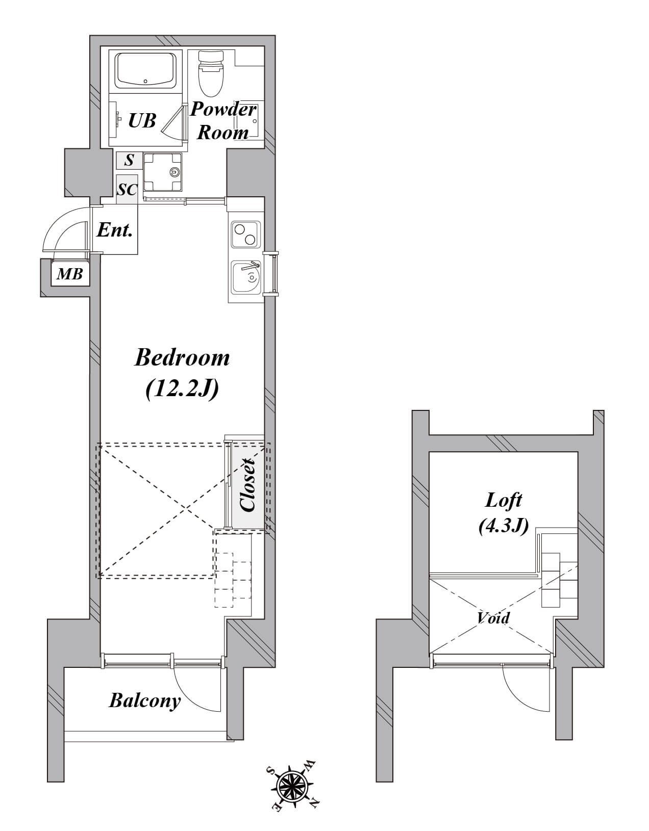
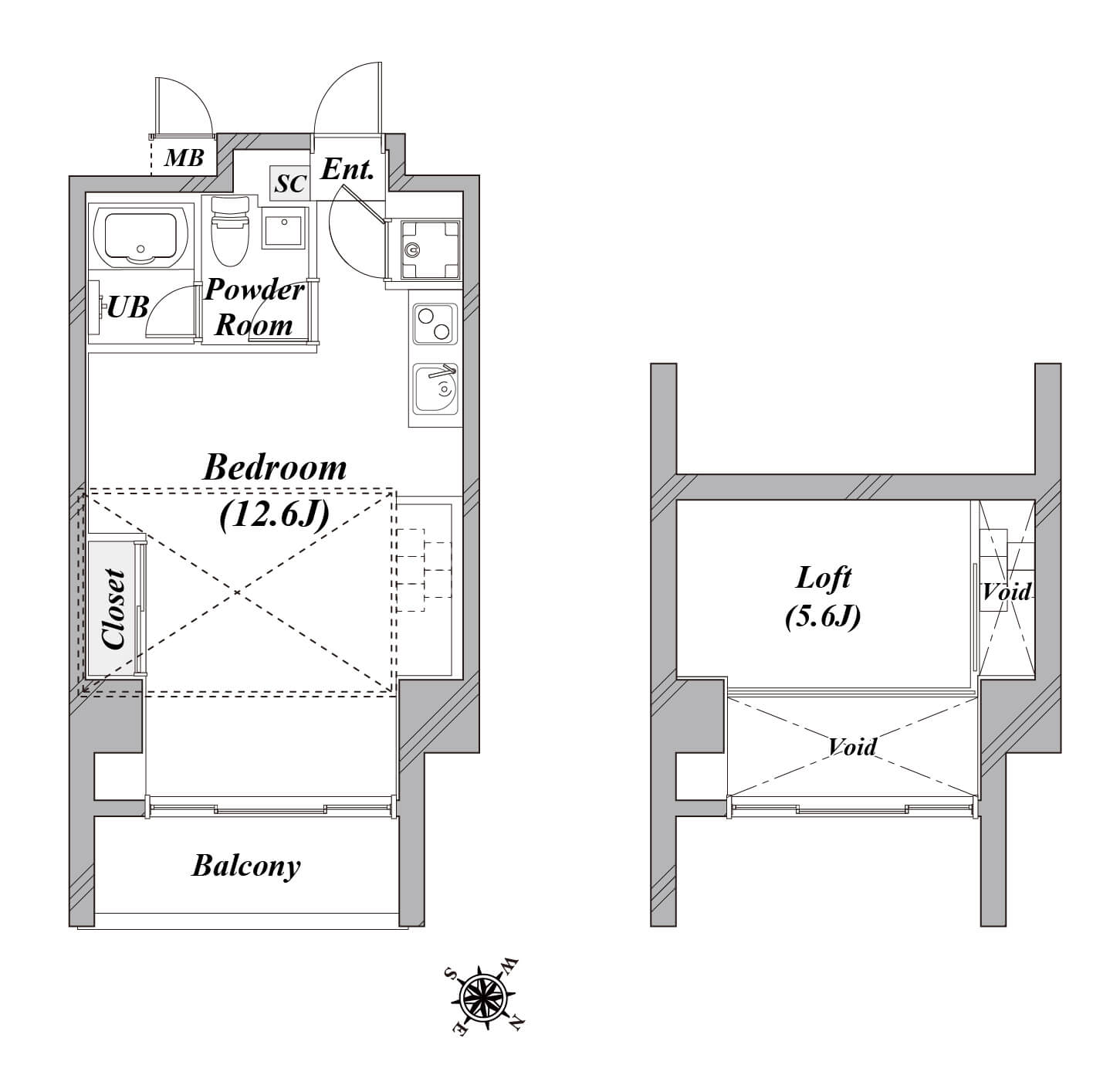
PLAN プラン・設備
より明るく、広々とした空間を実現。
すっきりとしたデザインの中にも機能性が加わり、心地よさが形となった住空間に仕上がっています。
すっきりとしたデザインの中にも機能性が加わり、心地よさが形となった住空間に仕上がっています。
PLAN
A type
B type
C type
D type
※図面と現況が異なる場合は、現況を優先させていただきます。